NICE DINING, Restaurant, München, Germany, 2025
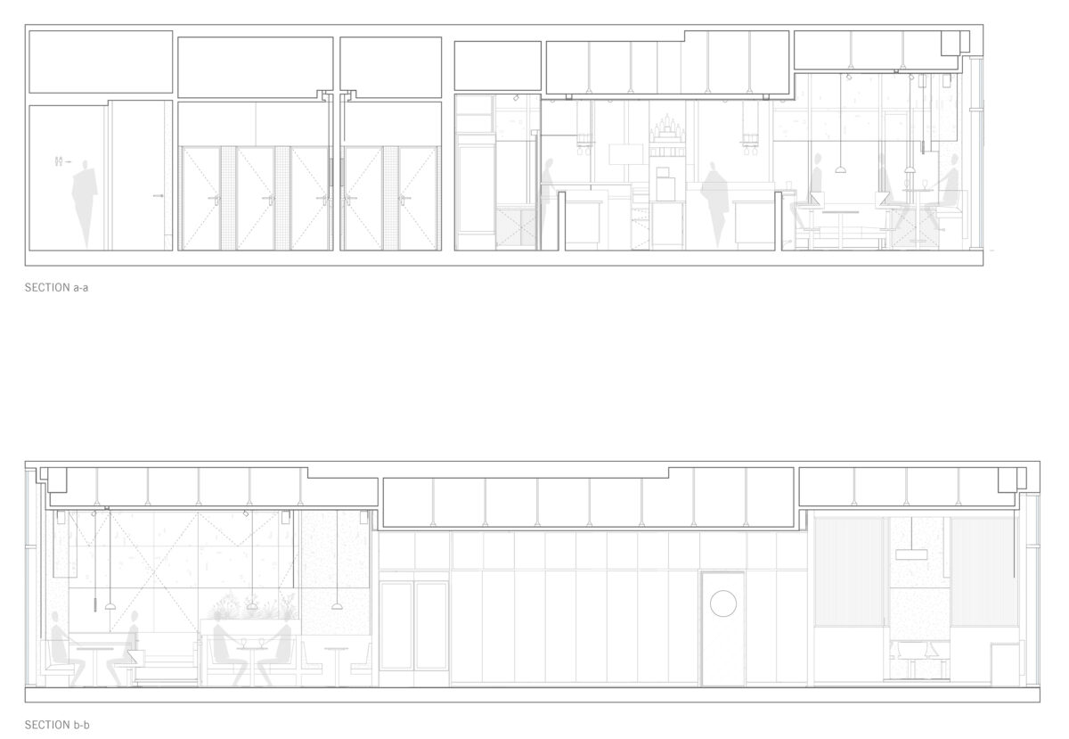
Nice Dining occupies the ground-floor corner of a new office block in Munich’s Werksviertel. The interior counters commercial neutrality with a precise palette: blackened steel, American cherry, Gris marble (Albania), Cherry Red marble (Turkey). Not applied finishes, but materials with narrative weight, chosen to patinate; grain, oxidation, and joinery remain visible.
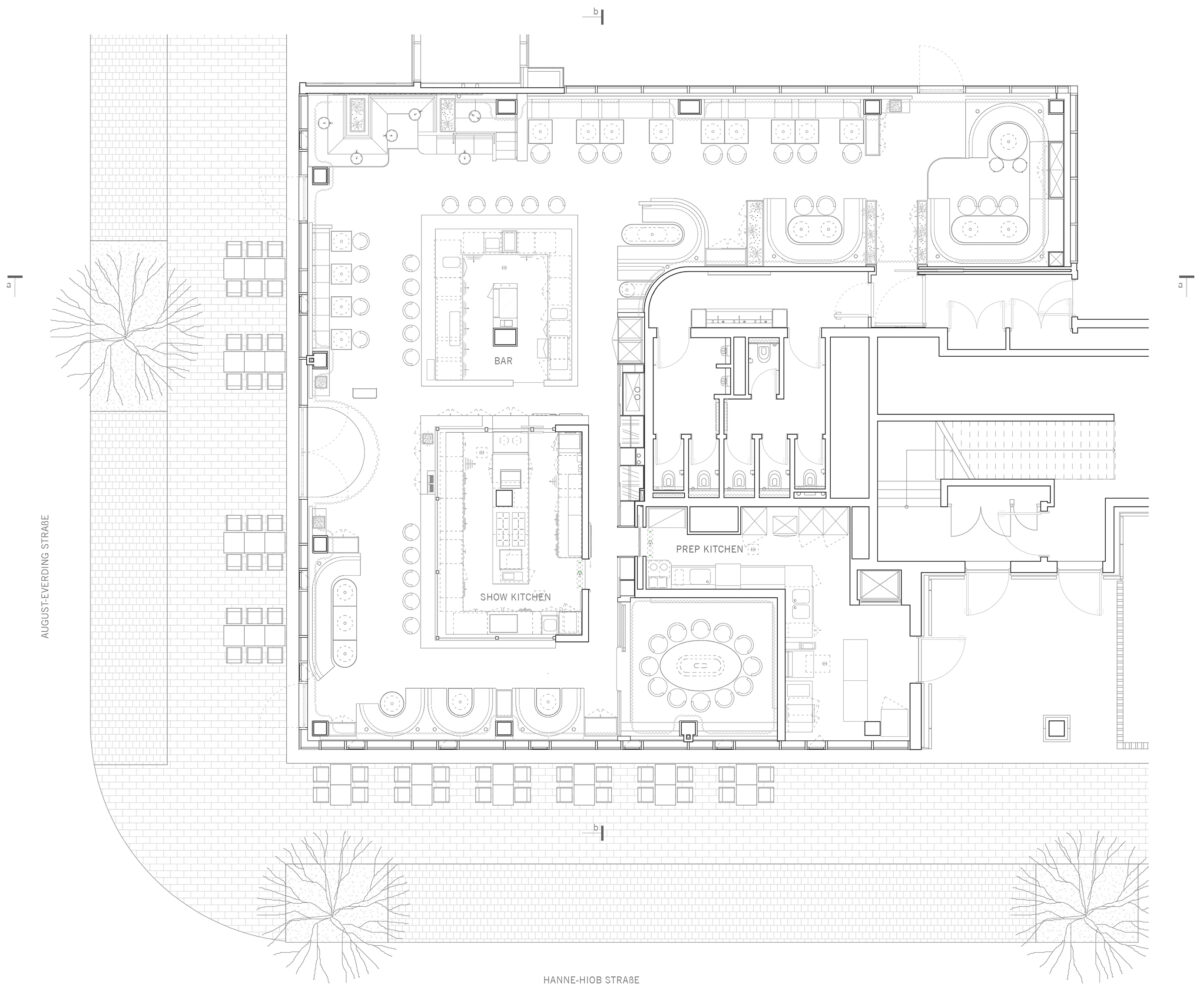
At the center, a long bar–kitchen island acts as a hearth, and a suspended steel ceiling echoes its form. Custom seating landscapes set a relaxed, domestic posture; bespoke chairs and stools (the “hug” series) reinforce tactility at the body.
A slim glass partition modulates openness. Laser-cut curtains temper acoustics and cast geometric daylight. The room shifts from bright clarity to warm saturation after dark. The project treats the restaurant as catalyst: precise, unthemed, materially rich; atmosphere over spectacle.
Architect: ALLEN KAUFMANN Architekten
Photography: ALLEN KAUFMANN STUDIO