HAGELBERGERSTRASSE WOHNUNG, APARTMENT, Berlin, Kreuzberg, Germany, 2024
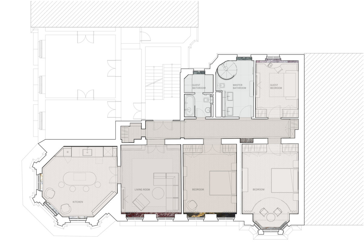
Against the developer reflex of low-cost finishes and blanket white paint, the brief was simple: intervene only where necessary while keeping the existing layout and structure, and replace generic surfaces with specific materials. Oak herringbone throughout; a perimeter band widens locally for built-ins and the kitchen line; suspended ceilings only where services require.
The clear, compact plan centers on a kitchen that seems octagonal but is septagonal, with a long working line on the long wall and a pill-shaped island.
Color and stone index each room; a continuous marble band at the window base returns street light deep into the apartment. Stones: Anatolian Pink, Cherry Red, Belveder, Astana Gray, Penelope, Lavender Star. Patinating brass at touch points; in the private bath a circular brass cap closes services and the curved-glass shower ends in a faceted plane.
Architect: ALLEN KAUFMANN Architekten
Photography: ALLEN KAUFMANN STUDIO