PINCI, Restaurant, Berlin, Mitte, Germany, 2024
Located in a listed Plattenbau on Große Hamburger Straße, this project redefines the Italian market café, turning the ground floor into a contemporary hub for gastronomy and community. Designed for three owner-operators, it engages its urban context with clarity.
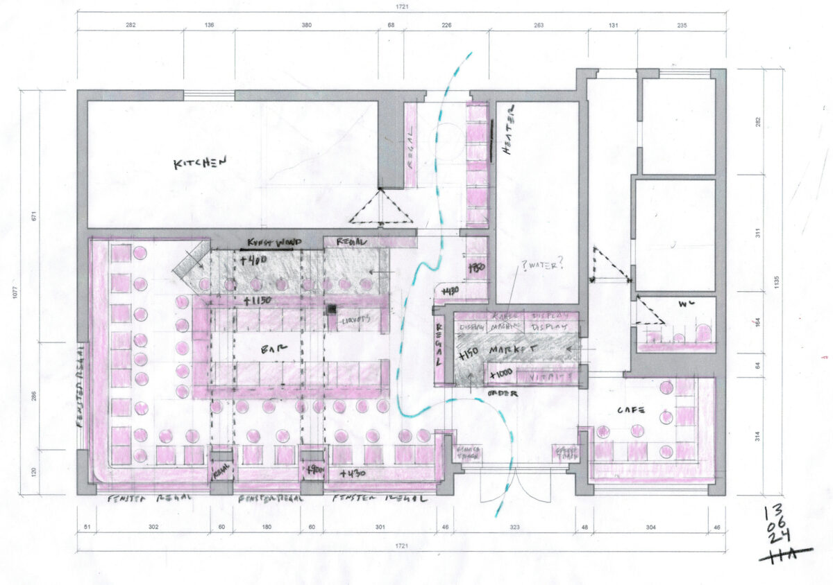
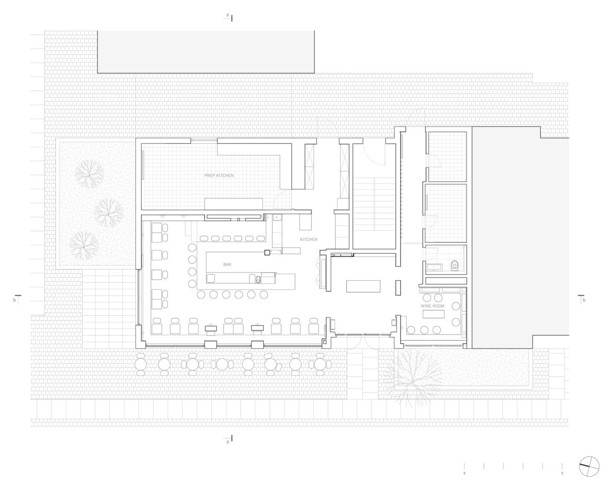
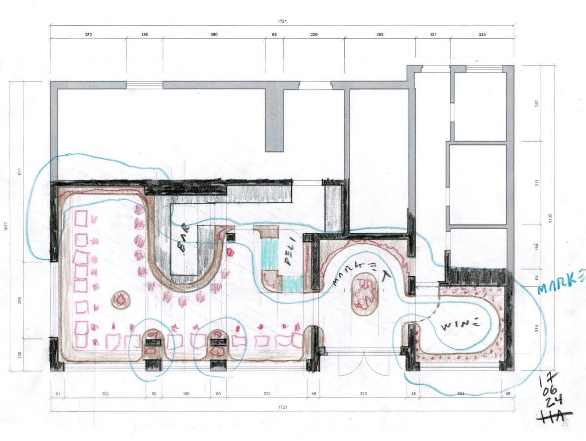
An understated façade conceals the activity inside. Entry is through a foyer with a bookshop sensibility, where cured meats, fruit, and Italian wines are displayed with precision. This central space links a focused wine-tasting room on one side and a lively market on the other.
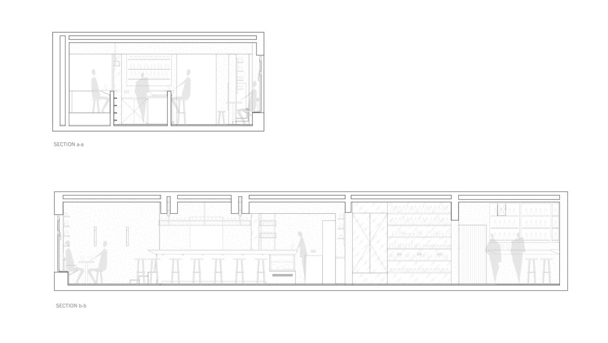
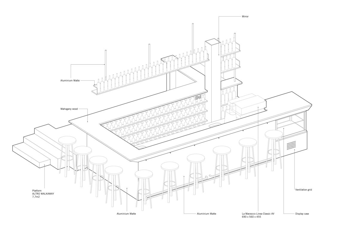
In the market, contrasts set the tone. U-Bahn-inspired flooring anchors the room; mahogany seating and bar add warmth. Stainless-steel work surfaces and minimalist shelving frame the color of Italian produce and delicacies.
Architect: ALLEN KAUFMANN Architekten
Photography: ALLEN KAUFMANN STUDIO